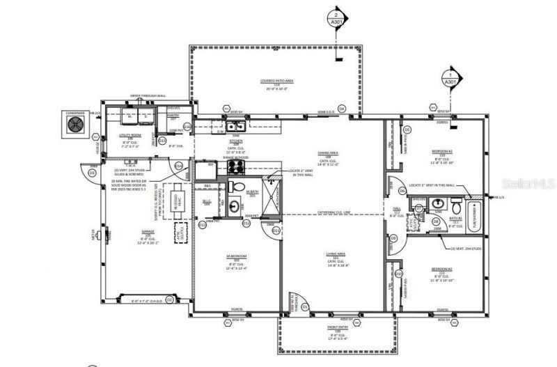
Under Construction. New Block Construction in Rainbow Park - Open Concept Living! Expected completion June 2026Welcome to your pristine, move-in-ready new construction home located in the peaceful, growing community of Rainbow Park. Offering a well-designed split floor plan, this thoughtfully crafted home maximizes every inch of its 1,372 sq. ft. of living space.The private primary suite is tucked away on its own side of the home, boasting a spacious walk-in closet and a beautifully appointed en-suite bath with a walk-in shower. Two additional bedrooms and a full guest bath are situated on the opposite wing, providing optimal privacy. A dedicated interior laundry room and pantry ensures your chores and day-to-day organization stay completely out of sight.-Total Under Roof: 1,985 Sq. Ft.-Living Area (Under Air): 1,372 Sq. Ft.-Layout: 3 Bedrooms / 2 Bathrooms (Split Plan)-LVP, Tiled Bathrooms-Exterior Space: 340 Sq. Ft. of covered patio and entry space-Garage: 250 Sq. Ft. attached garage-Convenience: Dedicated pantry and interior laundry/utility room.No HOA! Bring your toys and enjoy the freedom of Rainbow Park.* Seller has active FL Real Estate License
Listed By
Agency Name: MARK C. DEBOLT INC
Agency Contact: 352-690-1888
Shown By
Agency Title: The Myrick Team
Agency Phone: 704-699-9899
Estimated Payment
$ 679.73 per month $589.55 Principal & Interest $12.92 Property Tax $77.26 Homeowner's Insurance
4258 SW 157th Court Sw | MLS# OM722313
This single family home located at 4258 SW 157th Court Sw, Ocala, FL 34481 is currently listed for sale with an asking price of $264,900. This property was built in 2026 and has 3 bedrooms and 2 full baths with 1372 sq. ft. SW 157th Court Sw is located in the RAINBOW PARK subdivision. Search RAINBOW PARK real estate on www.tarenmyrick.com today.